Рабочее давление : 1.25 ~ 2.5 МПа
Температура воды на выходе : 194 ~ 400 ℃
Номинальная мощность испарения : 10 ~ 50 т/ч
Доступное топливо : древесина, рисовая шелуха, жом.
Применение : Котел центрального отопления ,Бумажно-перерабатывающая промышленность ,Котел химической промышленности ,Фармацевтическая промышленность
Электронная почта : [email protected]
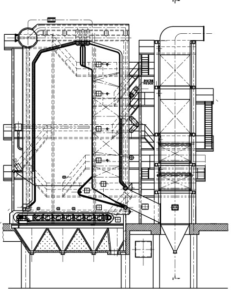
Котел DHL с угловыми трубами из жома представляет собой котел с толстостенной отводной трубой большого диаметра, расположенной в четырех углах котла и состоящей из рамы, несущей общий вес. Водяной цикл уникален и безопасен, котел запускается быстро, конструкция компактна, что позволяет эффективно сэкономить затраты на строительство стали и котла, а также затраты на последующее техническое обслуживание. Топка котла с угловыми трубами и конвекционная поверхность нагрева имеют самонесущую конструкцию. Котел с угловой трубой обладает высокой эффективностью и энергосбережением, что широко используется в различных промышленных производственных процессах, а также в целях центрального отопления.
Этот котел может сжигать различные виды топлива из биомассы, такие как древесная щепа, рисовая шелуха, жом, скорлупа арахиса, хлопковая скорлупа, кокосовая скорлупа и т. д. Топливо из биомассы представляет собой возобновляемую зеленую энергию с широким спектром источников. Энергия биомассы постепенно заменит уголь и станет одним из основных источников энергии. По сравнению с котлами, работающими на угле, топливо из биомассы имеет более низкую стоимость и более низкие эксплуатационные расходы.


1. Четыре угла водогрейного котла с угловой трубой представляют собой толстостенные сливные трубы большого диаметра, котел состоит из сливных труб, барабана котла, стенки с водяным охлаждением, коллектора, поверхности нагрева в форме флажка и армирующей балки. Нет стальной рамной конструкции.

2. Барабан водогрейного котла с угловыми трубами расположен снаружи продольно или горизонтально, выход печи расположен в высоком положении, а пространство для горения относительно достаточно.

3. Вокруг печи и канала поверхности нагрева используются полностью закрытые мембранные водоохлаждаемые стены, печь имеет большую площадь поперечного сечения и большой объем.

4. Применяется уникальная технология конструкции поверхности нагрева флажкового типа, большое количество трубок с конвекционной поверхностью нагрева выводятся из настенных трубок пленочного типа с водяным охлаждением, образуя поверхность нагрева, подобную баннеру.

5. Решетка котла с угловой трубой имеет решетку чешуйчатого или балочного типа, которая принимает изобарическую структуру бункера для шлама. Под поверхностью решетки находится большая изобарная камера. Между изобарным воздушным бункером и решетчатым забоем расположено несколько групп

6. Можно расположить вторичный воздух на передней и задней стенке печи в соответствии с различными типами топлива.

7. Экономайзер или подогреватель воздуха расположен в задней части котла, который может поглощать тепло дымовых газов, снижать температуру выхлопных газов, экономить энергию и повышать эффективность.
| Модель | Номинальная производительность испарения (т/ч) | Номинальное давление (МПа) | Номинальная температура пара (℃) | Температура питательной воды (℃) |
| DHL20-1.25-AII | 20 | 1.25 | 194 | 105 |
| DHL20-2.5-AII | 20 | 2.5 | 226 | 105 |
| DHL25-1.25-AII | 25 | 1.25 | 194 | 105 |
| DHL25-1.6-AII | 25 | 1.6 | 204 | 105 |
| DHL35-1.25-AII | 35 | 1.25 | 194 | 105 |
| DHL35-1.6-AII | 35 | 1.6 | 204 | 105 |
| DHL35-2.5/400-AII | 35 | 2.5 | 400 | 105 |
| Примечание: Параметр предназначен только для справки, если какие-либо изменения должны соответствовать фактическому чертежу. | ||||
Бангладеш | Котел-утилизатор
Южная Африка | Горячее топливо с углем
Соединенные Штаты | Газовый паровой котел
Сербия | Горячий котел биомассы