Рабочее давление : 1.25 МПа
Температура пара : 194 ℃
Доступное топливо : уголь, биомасса
Номинальная производительность испарения : 35 т/ч
Применение : Котел центрального отопления, Бумажно-перерабатывающая промышленность, Котел химической промышленности, Котел сахарной промышленности
Электронная почта : [email protected]
Технология сжигания в циркулирующем псевдоожиженном слое отличается высокой эффективностью, чистотой и низкой температурой. В последние годы она разрабатывается и продвигается. Xinli Boiler использует все преимущества котла ЦКС и модернизирует технологию, улучшая технические характеристики котла, энергосберегающие и экологические показатели, а также надежность эксплуатации. SHX - это одна из серий котлов с ЦКС, в которой используются преимущества высокоэффективной технологии сжигания с внешним циркуляционным циклоном, он обладает характеристиками высокого термического КПД, высокой скорости десульфурации, компактной конструкции и простоты в эксплуатации. Котел может использоваться в различных отраслях промышленного производства и производства электроэнергии, является идеальной альтернативой традиционным отопительным котлам.
Рабочий процесс: Топливо подается в печь по конвейеру, смешивается с воздухом в области плотной фазы, затем ожижается и сжигается. Высокотемпературный дымовой газ несет в себе большое количество горящих твердых частиц, которые промывают область разбавленной фазы. При горении твердые частицы передают тепло поверхности нагрева и одновременно нагревают водную среду. Несгоревшие твердые частицы поступают в сепаратор, собираются сепаратором и возвращаются в зону плотной фазы для циркулирующего горения через возвратный питатель, таким образом, эффективность сгорания увеличивается. Воспламенившиеся твердые мелкодисперсные частицы выходят из сепаратора с высокотемпературными дымовыми газами, омывают конвективную поверхность нагрева и хвостовую поверхность нагрева и после обеспыливания пылеуловителем выбрасываются в атмосферу.


Температура в печи составляет 850℃~950℃, частицы топлива могут достичь температуры печи и быстро сгореть. Таким образом, котел ЦКС может сжигать различные виды твердого топлива без каких-либо вспомогательных видов топлива.

топливо смешивается с большим количеством высокотемпературного топлива, быстро сгорает и имеет высокую скорость сгорания. Несгоревшие частицы возвращаются в печь для циркуляционного горения с помощью циклонного сепаратора, что удлиняет период горения.

Процесс десульфурации происходит при оптимальной температуре реакции в печи, а циркуляционная система может продлить время пребывания десульфуратора в котле, кроме того, размер частиц десульфуратора составляет 0,1 мм, реакционный контакт

Температура печи поддерживается на уровне 850℃~950℃, температура относительно низкая, поэтому выбросы NOx меньше. В противном случае котел CFB использует зональную подачу воздуха и зональное сжигание, топливо может сгорать в достаточной степени, с низким уровнем выбросов NOx.

Сильное перемешивание и быстрая теплопередача в печи, поперечное сечение печи имеет высокую тепловую нагрузку (около 3~5 МВт/㎡).

Топливо сгорает при низкой температуре, а высокая эффективность сгорания обеспечивает низкое содержание углерода в шлаке, а также большое количество оксида и сульфата кальция, которые можно использовать для производства цемента, кирпича и т. д.
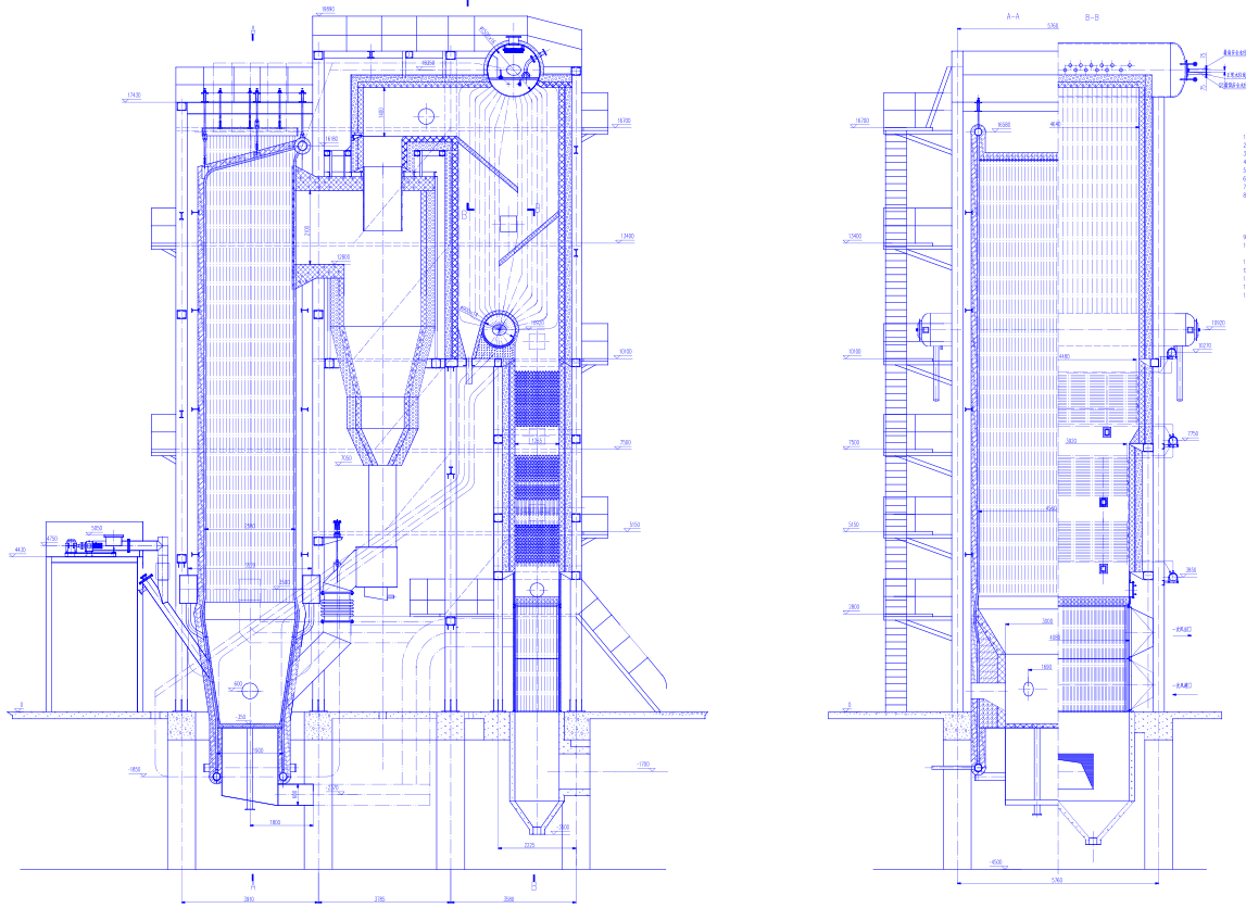
SHX35-1.25-AII - это котел горизонтального типа с естественной циркуляцией и двойными барабанами, корпус котла выполнен в двухслойном исполнении, обычно высота рабочей пластины котла составляет 6000 мм. Основные размеры корпуса котла: верхний барабан Φ1500×16, центральный уровень 18350; нижний барабан Ф900×14, центральный уровень 10920, габаритные размеры котла 13100×9960×19900 (Длина×Ширина×Высота).
Передняя топка котла имеет подвесную конструкцию с цельномембранной водяной стенкой. В системе разделения используется адиабатический высокотемпературный циклонный сепаратор и автоматическое балансировочное устройство возврата материала U-типа. Пучки конвекционных труб между верхним и нижним барабанами обеспечивают достаточную поверхность нагрева. В экономайзере используется трехступенчатый экономайзер из стальных труб, а воздухоподогреватель расположен в хвостовой части котла.
Бангладеш | Котел-утилизатор
Южная Африка | Горячее топливо с углем
Соединенные Штаты | Газовый паровой котел
Сербия | Горячий котел биомассы